Gagan Avencia Phase 2 Kharadi, Pune

2 & 3 BHK
667 - 988 SQ. FT.
₹ 96.66 Lakh-1.35 Cr.*
667 - 988 SQ. FT.
RERA
Last Updated Date 19 September, 2025
  • Project Area 667 - 988 SQ. FT.
  • Project Type Residential
  • Project Status New Projects
  • Possession on 01 Dec 2029
  • Configurations 2 & 3 BHK
RERA Name : Gagan Avencia
RERA No : P52100005102
QR Code

For more information please scan QR code

RERA WEBSITE : https://maharerait.mahaonline.gov.in/searchlist/search?CertficateNo=P52100005102

Gagan Avencia: Modern living spaces for a comfortable living!

Gagan Properties proudly presents its latest residential enclave by the name of Gagan Avencia, stationed at Kharadi, Pune. The beautiful domestic community is surrounded by pleasing and well-maintained landscapes that offer lovely views outside. Built by experienced and professional architects and designers, the apartments spellbound its residents with its stunning architecture, and superior and fine craftsmanship.

Gagan Avencia Kharadi, Pune is developed across huge areas of land and offers a fine collection of 2 and 3 BHK amazingly built residences of size 920 - 1101 sq. ft. (Carpet Area) The homes feature double height private terrace and are well-lit and well-ventilated with ample flow of fresh air circulating throughout. They are fully automated with modern security systems installed like smoke detectors. The interiors are also adorned with fittings and fixtures of high quality, like vitrified tiled flooring throughout, solar water heater connections, acrylic paint walls, top quality doors and windows and many other superior accessories.

The close-knit gated complex offers a dotted array of facilities that include kids’ play area, rain water harvesting, swimming pool, gym, club house, sports arena, round-the-clock video security and lush green gardens for healthy strolls in the morning and evening.

Coming up in the thriving location of Kharadi, Pune, the property is a much sought-after residential affair due to its closeness to basic conveniences and also the easy connectivity with prime locations of the city. Located between Mundhwa and Hadsapur, it has EON IT Park in close vicinity. It is walking distance away from World Trade Centre and approximately 13 kms from Pune International Airport and enjoys proximity to the upcoming SEZ.

Gagan Avencia price starts at Rs 1.08 Cr onwards and is supported by easy payment plans and amazing home loan facilities at best possible interest rates, to choose from.

Thus, this magnificent luxury residential venture, centrally located at Kharadi, will give a warm and soothing feel to its residents and with all the infrastructure development happening in the area, makes an excellent investment opportunity. Exclusively designed and finished, the homes offer a visual delight to every corner of the eye.

Read More
Inquire Now !

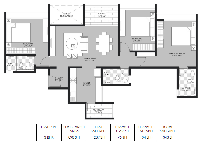
Gagan Avencia Phase 2 Floor Plan

Gagan Avencia Phase 2 Amenities

Club House
Meditation Center
Kids Play Area
Swimming Pool
Gym
Open Space
Intercom
Theatre
Video Security
Creche
Basketball Court
Jogging Track
Tennis Court

Gagan Avencia Phase 2 Payments Plan

Unit Type Size (SQ. FT.) Price (SQ. FT.) Amount Booking Amt
2 BHK 667) On Request ₹ 9666000 ₹ On Request
3 BHK 988) On Request ₹ 13500000 ₹ On Request

Gagan Avencia Phase 2 Specification

  • A 3.5-acre project with Mivan construction.
  • Two towers, E and F, with 24 floors.
  • Four and three flats per floor in towers E and F.
  • Located in Kharadi, behind EON IT Park.
  • Near Nagar Road, Airport, and Magarpatta City.
  • Enjoy a double-height private terrace.
  • A wide range of amenities for recreation and work.
  • Kitchens with vitrified tile flooring for a modern finish.

Gagan Avencia Phase 2 Location Map and Landmarks

Gagan Avencia Phase 2 Location Map Image
  • International Tech Park Pune - 1.3 Km
  • EuroSchool Kharadi - 1.2 Km
  • Nagar Road Highway - 1.4 Km
  • Rajaram Bhiku Pathare Stadium - 2.7 Km
  • Manipal Hospital - 4.7 Km
  • Phoenix Marketcity Pune - 5.9 Km
  • Hadapsar Railway Station - 6.2 Km
  • Hyatt Pune - 6.8 Km
  • Savitribai Phule Pune University - 18.9 Km
  • Pune International Airport - 9 Km
  • The Poona Club Golf Course - 8.6 Km
  • Diamond Water Parks - 10.2 Km
  • Ruby Hall Clinic - 11.7 Km

EMI Calculator

Ratings

About Developer

Gagan Developer

360 Channel Partner
  • Established
  • Total Projects 5
  • Ongoing Projects 1
  • City Present 1
I AM INTERESTED IN

Leading Real Estate Developers

Disclaimer

This website is only for the purpose of providing information regarding real estate projects in different regions. By accessing this website, the viewer confirms that the information including brochures and marketing collaterals on this website is solely for informational purposes and the viewer has not relied on this information for making any booking/purchase in any project of the company. Nothing on this website constitutes advertising, marketing, booking, selling or an offer for sale, or invitation to purchase a unit in any project by the company. The company is not liable for any consequence of any action taken by the viewer relying on such material/ information on this website.

Please also note that the company has not verified the information and the compliances of the projects. Further, the company has not checked the RERA (Real Estate Regulation Act 2016) registration status of the real estate projects listed here in. The company does not make any representation in regards to the compliances done against these projects. You should make yourself aware about the RERA registration status of the listed real estate projects before purchasing property.

The contents of this Disclaimer are applicable to all hyperlinks under https://www.360realtors.com/. You hereby acknowledge of having read and accepted the same by use or access of this Website.Unless specifically stated otherwise, the display of any content (including any brand, logo, mark or name) relating to projects developed, built, owned, promoted or marketed by any third party is not to be construed as 360 Realtors association with or endorsement of such project or party. Display of such content is not to be understood as such party's endorsement of or association with 360 Realtors. All content relating to such project and/or party are provided solely for the purpose of information and reference. 360 Realtors is an independent organisation and is not affiliated with any third party relating to whom any content is displayed on the website.

Enquire Now!

Find Your Perfect Property

Whatsapp Enquire Now
Favourites